İLAN HEKİMHAN BELEDİYESİ İMAR İŞLERİ BİRİMİNDEN 15 Ekim 2025, 10:35
İLAN
HEKİMHAN BELEDİYESİ
İMAR İŞLERİ BİRİMİNDEN
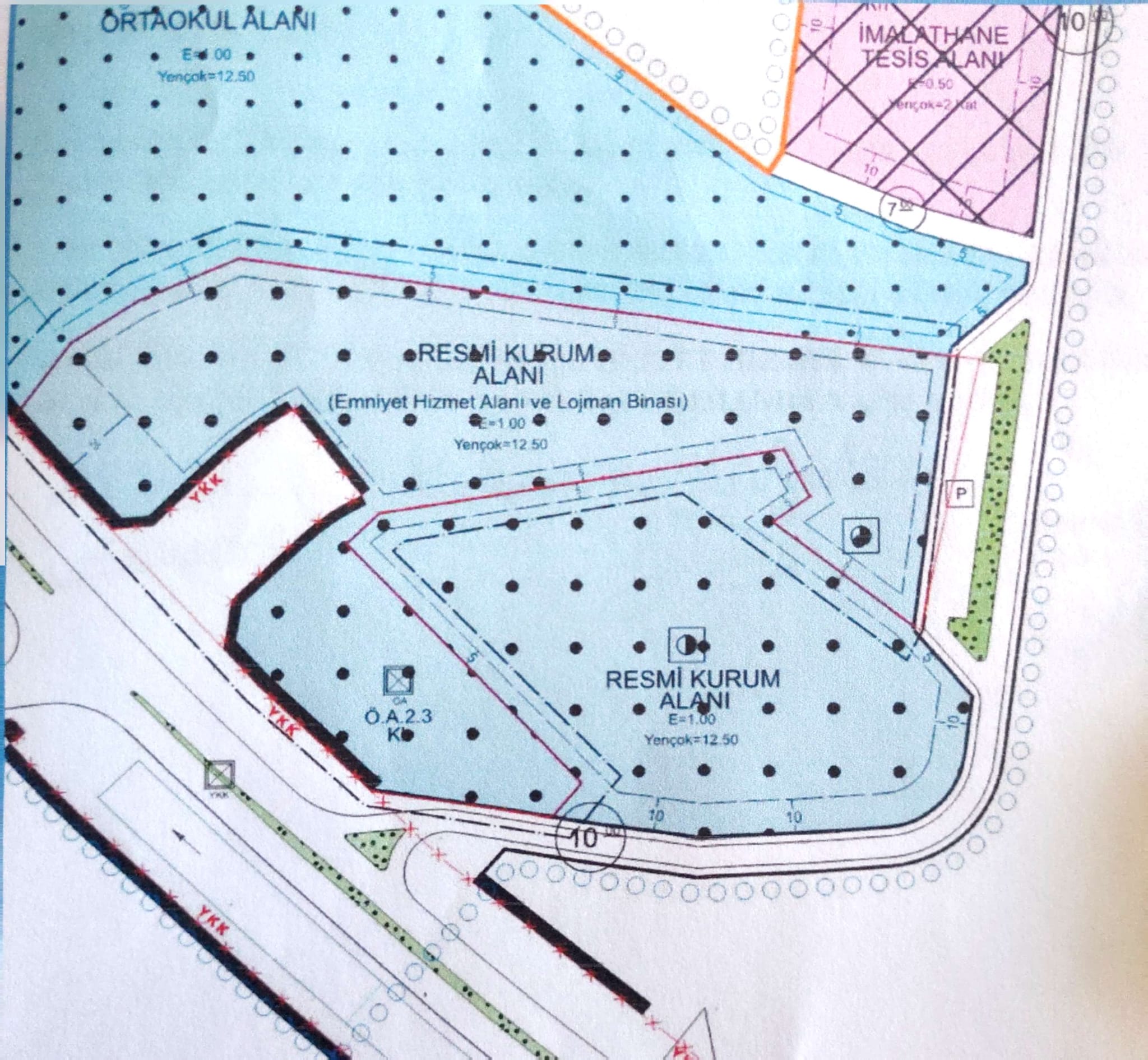
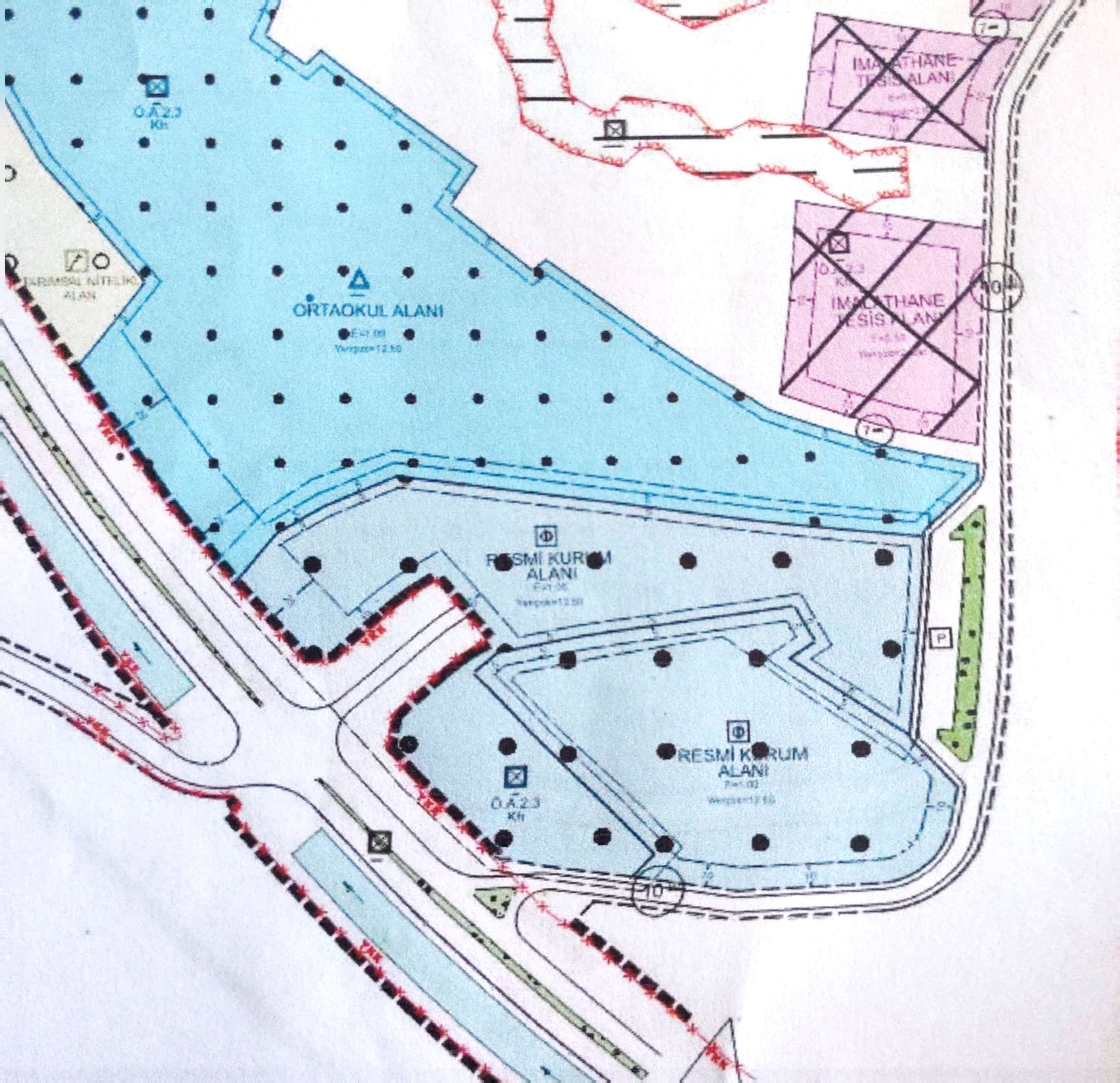
Köprülü Mehmet Paşa Mahallesi 1007 ada 25 parselde yapılan 1/1000 ölçekli Uygulama İmar Plan Değişikliği, Hekimhan Belediye Meclisi’nin 06.05.2025 tarih ve 2025/44 sayılı kararı ve Malatya Büyükşehir Belediye Meclisi’nin 09.07.2025 tarih ve 352 sayılı meclis kararı ile onaylanmıştır. Onaylanan Uygulama İmar Planı Değişikliği 3194 Sayılı İmarKanununun 8/b maddesi ile Mekânsal Planlar Yapım Yönetmeliği’nin 33. Maddesi hükümleri gereği, Hekimhan Belediyesi İmar İşleri Birimi ilan panosunda ve internet sitemizde 13/10/2025 tarihinden itibaren “30” gün süre ile askıya çıkarılmıştır.
1/1000 ölçekli Uygulama İmar Planın da Resmi Kurum Alanı iken yapılan Plan Değişikliği ile Resmi Kurum Alanı (Emniyet Hizmet Binası ve Lojman Binası) olarak değişmiştir.

DIĞER İLANLAR
-
İLAN HEKİMHAN BELEDİYESİ İMAR İŞLERİ BİRİMİ
23 Şubat 2026, 14:22 -
2026 YILI BELEDİYE VE BAĞLI KURULUŞLARI İLE MAHALLİ İDARE BİRİLİKLERİ PERSONELİ GÖREVDE YÜKSELME SINAVI İLANI
08 Ocak 2026, 15:39 -
ASKI İLANI
31 Aralık 2025, 11:42 -
METRUK YAPI İLANI
19 Kasım 2025, 15:00 -
İLAN HEKİMHAN BELEDİYESİ İMAR İŞLERİ BİRİMİNDEN
15 Ekim 2025, 10:35
